ALLPLAN 2026

DESIGN TO BUILD A BETTER TOMORROW 

Flujos de trabajo AEC innovadores, automatización y colaboración basada en la nube para proyectos más exitosos.

 Prueba gratuita

CARACTERÍSTICAS PRINCIPALES DE ALLPLAN 2026

Las versiones 2026 de los productos de ALLPLAN siguen redefiniendo la productividad y la colaboración para arquitectos, ingenieros, fabricantes y profesionales de la construcción. Estas últimas versiones se centran en la modernización, la automatización y la integración, y ofrecen herramientas robustas, procesos fluidos y una interoperabilidad avanzada para satisfacer las demandas cambiantes del sector AEC.

Las soluciones de ALLPLAN permiten flujos de trabajo colaborativos de principio a fin en el modelado, el diseño, el detallado y la fabricación de edificios e infraestructuras, hasta la construcción. Los nuevos desarrollos agilizan los proyectos, aumentan la precisión, fomentan la innovación y la sostenibilidad, y garantizan la agilidad y la capacidad de respuesta del equipo a lo largo de todo el ciclo de vida del proyecto.

VENTAJAS PRINCIPALES:​

  • Colaboración inteligente basada en la nube a lo largo de todo el ciclo de vida del proyecto​
  • Interoperabilidad superior entre disciplinas y flujos de trabajo de diseño e ingeniería​
  • Mayor automatización y precisión con procesos de modelado robustos​
  • Proyectos innovadores y sostenibles con un menor impacto medioambiental​
  • Escalabilidad y flexibilidad que garantizan la agilidad y la capacidad de respuesta del equipo

 Prueba Gratuita

CARACTERÍSTICAS PRINCIPALES Y MEJORAS DE ALLPLAN 2026

Incluido en: #Concept

Modelador de escaleras de forma libre mejorado

Cree escaleras únicas y conformes con una flexibilidad y facilidad sin igual

Con la creciente demanda de diseños destacados, los arquitectos y planificadores necesitan herramientas flexibles para crear escaleras únicas y funcionales. Las escaleras de forma libre se adaptan perfectamente a espacios inusuales, lo que ofrece más posibilidades creativas para cada proyecto. ALLPLAN 2026 introduce un modelador de escaleras flexible que facilita el diseño de escaleras personalizadas y poco convencionales, incluso en espacios difíciles.  El modelador de escaleras de forma libre le permite crear formas únicas o complejas que cumplen con las normas específicas de cada país. Además, ahora puede definir planos de referencia en la parte superior o inferior de la escalera, lo que agiliza la adición de paredes o habitaciones debajo de las escaleras. Disfrute de una versatilidad y eficiencia sin igual, todo ello en una única herramienta intuitiva para diseñar escaleras destacadas y conformes con la normativa. 

Ver vídeo

Incluido en: #Concept

Gestión avanzada de losas multicapa

Mayor flexibilidad y precisión para un diseño de edificios moderno y sostenible

El sector AEC necesita formas eficientes de diseñar y gestionar componentes multicapa para edificios modernos y sostenibles, al tiempo que se cumplen las normas del proyecto en cada fase. ALLPLAN 2025 introdujo la compatibilidad con ALLPLAN para losas multicapa y herramientas mejoradas de detallado y planificación de la ejecución. Con ALLPLAN 2026, el diseño de losas multicapa y losas de cimentación es ahora más intuitivo y eficiente que nunca. Las últimas actualizaciones permiten a los arquitectos e ingenieros controlar con precisión la dirección de la extensión de la capa de la losa y previsualizar instantáneamente los cambios con una nueva vista previa interactiva. El modelado de ensamblajes complejos, como losas de cimentación, capas de terreno o capas de subbase, se vuelve sencillo y muy preciso. Estas mejoras se traducen en flujos de trabajo más rápidos, menos errores y resultados coherentes y detallados desde la planificación inicial hasta la ejecución sostenible y lista para construir. 

Ver vídeo

Incluido en: #Concept

Detallado de habitaciones y acabados conforme a BIM

Más preciso, más rápido y más fácil

ALLPLAN 2026 mejora significativamente la planificación BIM al ofrecer un flujo de trabajo flexible, preciso y eficiente para el modelado de acabados. Las características clave incluyen acabados verticales multicapa con geometría realista en combinación con distribución basada en reglas, nuevo filtro de habitaciones para organizar los acabados de las habitaciones asociadas o admitir diseños alternativos, visualización en planta de acabados verticales como paredes, modelado de zócalos en 3D y una interfaz mejorada para la gestión de capas. Estas mejoras ayudan a los arquitectos a crear planos 2D y 3D precisos, simplificar el manejo de los acabados, reducir los errores y adaptarse a diversos tipos de proyectos para obtener mejores resultados. Además, el proceso de cálculo optimizado permite a los planificadores ahorrar tiempo al realizar cambios en el diseño y actualizar proyectos complejos.

 Prueba Gratuita

Incluido en: #Concept

Componente personalizado: conexiones basadas en prioridades

Interacción y automatización perfectas para modelos BIM más inteligentes y de mayor calidad

ALLPLAN 2026 introduce una función mejorada de componentes personalizados con conexiones basadas en prioridades (PBC) en el modelo BIM. Esta mejora permite una interacción perfecta entre los elementos modelados de forma personalizada y los componentes nativos del edificio, como paredes, columnas y losas, así como entre objetos personalizados. Ahora los planificadores pueden modelar formas complejas con mayor precisión, mientras que las interacciones automatizadas reducen el esfuerzo manual y minimizan los errores. Estas mejoras agilizan los flujos de trabajo, proporcionan modelos BIM de mayor calidad y contribuyen a una ejecución más satisfactoria incluso de los proyectos más exigentes. 

Ver vídeo

Incluido en: #Professional

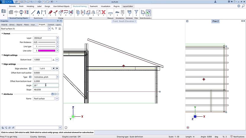
Estructuras mejoradas

Modele y actualice rápidamente los diseños de estructuras

Las nuevas herramientas para colocar correas y sistemas de vigas agilizan el modelado de edificios y la adaptación de los diseños de estructuras a los cambios en la geometría del tejado. Las opciones de ajuste mejoradas garantizan que los elementos de acero se coloquen con precisión a la primera, lo que reduce los errores de conexión.

Ver vídeo

Incluido en: #Professional

Conjuntos de estructuras

Mantenga conexiones precisas de forma automática

Deje de perder tiempo corrigiendo errores de conexión: acelere los diseños en ALLPLAN 2026 con la nueva funcionalidad para aplicar y actualizar automáticamente las conexiones, lo que garantiza que los conjuntos de acero sigan siendo correctos y válidos a lo largo de los cambios de diseño.

Incluido en: #Concept

Flujos de trabajo optimizados para paredes

Diseño de paredes simplificado con una interfaz moderna y unificada

ALLPLAN 2026 introduce una paleta de propiedades modernizada y unificada para la creación y modificación de paredes, incluidas las propiedades geométricas. Esta interfaz coherente e intuitiva facilita el inicio a los nuevos usuarios, mientras que los usuarios experimentados se benefician de una mayor eficiencia y flujos de trabajo fluidos entre diferentes tipos de objetos. El resultado es un proceso de diseño de paredes optimizado que aumenta la productividad y la satisfacción del usuario en cada proyecto.

Incluido en: #Professional

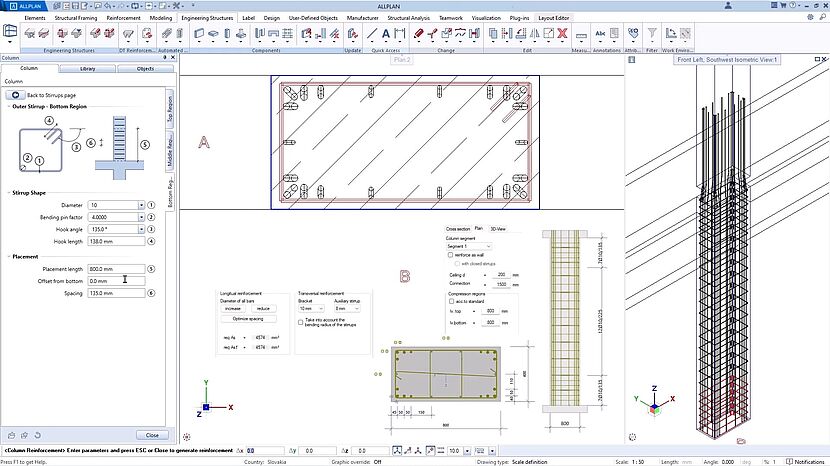
Detallado mejorado de barras de refuerzo

Diseño automatizado del refuerzo de columnas

En el detallado de barras de refuerzo, es fundamental la capacidad de asignar diferentes diámetros de barra a lados específicos de las columnas o de concentrar el refuerzo en las esquinas de las columnas. Con ALLPLAN 2026, los usuarios ahora pueden ajustarse mejor a las especificaciones de diseño asignando diferentes diámetros a las barras longitudinales en columnas cuadradas y rectangulares y definiendo su espaciado axial, ya sea concentrado en las esquinas o establecido en intervalos definidos por el usuario. Esto agiliza el diseño del refuerzo, lo que permite un trabajo más rápido y fiable al reducir en gran medida la necesidad de modificaciones manuales después del refuerzo automatizado de columnas. La transferencia de diseños de refuerzo desde software de análisis y diseño, como FRILO, es ahora aún más fluida y fiable, lo que garantiza flujos de trabajo sin interrupciones y sin errores. El resultado: entrega más rápida de los proyectos, menos errores y detalles estructurales de alta calidad desde el análisis hasta la ejecución. 

Ver vídeo

Incluido en: #Professional

Detallado automatizado del refuerzo

Mejoras para acelerar los flujos de trabajo de refuerzo de muros

La automatización del detallado del refuerzo permite a los usuarios ahorrar tiempo, acelerar los flujos de trabajo y trabajar con mayor fiabilidad. ALLPLAN 2026 mejora aún más el flujo de trabajo automatizado de refuerzo de muros, proporcionando una experiencia de automatización más ágil y sin frustraciones, así como un detallado más rápido y fiable. La prioridad del refuerzo horizontal o vertical se puede establecer con un solo clic, y cada tipo de refuerzo se puede activar o desactivar según sea necesario. Esto hace que la automatización sea práctica e intuitiva, lo que permite a los usuarios beneficiarse plenamente de la velocidad, la fiabilidad y la confianza que ofrece ALLPLAN.

Ver vídeo

Incluido en: #Professional

Refuerzo al campo

Potenciando la construcción digital

ALLPLAN 2026 introduce un flujo de trabajo optimizado de «Refuerzo al campo» que transforma la forma en que se modela y gestiona el refuerzo en los proyectos de construcción. Esto permite la creación de flujos de trabajo totalmente digitales y sin planos para estructuras de hormigón armado. Los detallistas y contratistas ahora pueden colocar el refuerzo directamente en vistas isométricas, beneficiarse de una gestión de atributos mejorada y manejar eficazmente las colisiones de refuerzo, incluso en proyectos con una alta densidad de barras de refuerzo. En conjunto, estas innovaciones impulsan un flujo de información sin fisuras desde el detallado hasta la obra, minimizan los errores y aumentan la productividad, acelerando su transición a la construcción digital.

Ver vídeo

Incluido en: #Professional

Un entorno de colaboración único para ingenieros: de los datos al 3D al instante

Visualice y gestione el proceso de ingeniería estructural directamente en BIMPLUS para obtener un análisis estructural más rápido y claro

Importar archivos SAF a BIMPLUS es ahora mucho más fácil. Los usuarios pueden importar archivos SAF directamente, generando al instante un modelo analítico en 3D para su visualización. Las opciones de filtro mejoradas permiten ver el modelo estructural por materiales, secciones transversales, tipos de carga o casos de carga, lo que hace que el análisis sea más intuitivo. 

Además, la integración del visor BIMPLUS en el entorno SAF basado en Excel permite una navegación interactiva: al seleccionar un objeto en el archivo, este se resalta en el modelo. Esta integración única acelera las revisiones, simplifica la detección de errores y ofrece un potente soporte a los ingenieros que trabajan con datos SAF.

Incluido en: #Professional

FRILO

Integración sin esfuerzo de modelos 3D en FRILO

Ahora los usuarios de ALLPLAN pueden transferir sin problemas sus modelos 3D al BIM Connector de FRILO, lo que facilita más que nunca el trabajo en todos los módulos de FRILO. Este proceso optimizado elimina los pasos manuales, acelera el intercambio de datos y garantiza un flujo de información coherente y preciso entre el diseño y el análisis. Los clientes se benefician de una mayor eficiencia, una mejor coordinación y una experiencia más fluida al trasladar los modelos estructurales a través de sus flujos de trabajo de ingeniería.

Incluido en: #Professional

Catálogo de secciones de acero basado en la nube

Siempre actualizado, siempre accesible

Acceda a un completo catálogo de secciones transversales para acero estructural, ahora disponible en la nube para su uso inmediato por parte de equipos y socios. Con los últimos perfiles y especificaciones mantenidos en una única fuente, todos se benefician de datos precisos y actualizados. La intuitiva interfaz de usuario facilita la visualización de las propiedades de las secciones transversales, lo que permite tomar decisiones de ingeniería más rápidas y colaborar de forma más fluida en todos los proyectos.

Incluido en: #Ultimate

DTM unificado: modelado de terrenos de última generación

Motor “todo en uno” para ediciones precisas, modelado avanzado y movimientos de tierra a gran escala

El nuevo DTM unificado sustituye al sistema heredado por un motor moderno y de alto rendimiento para flujos de trabajo de terreno precisos, fiables y detallados. Los usuarios pueden editar puntos individuales, manipular líneas de ruptura y derivar puntos del terreno directamente de los DTM existentes. Las herramientas avanzadas de modelado permiten crear con precisión mesetas, pendientes, zanjas y presas, mientras que la visualización basada en poliedros y la generación de sólidos entre DTM permiten realizar cálculos de volumen y validaciones de diseño coherentes. Este enfoque unificado elimina la redundancia, resuelve conflictos y garantiza la estabilidad en todos los proyectos, lo que permite a los ingenieros y arquitectos trabajar sin problemas, desde ediciones locales hasta movimientos de tierra a gran escala.

Ver vídeo

Incluido en: #Ultimate

Detalles mejorados de intersecciones de carreteras en 3D

Control vertical preciso y transiciones más suaves para un diseño de intersecciones preciso y con menos reelaboraciones

La última versión amplía el modelado paramétrico de intersecciones de carreteras con mayor flexibilidad y precisión en los detalles 3D. Los diseñadores ahora pueden definir la geometría vertical de los bordes de las intersecciones utilizando la entrada de polígonos tangentes, lo que permite transiciones suaves y complejas y el ajuste vertical independiente de los perfiles de los bordes izquierdo y derecho. Estas mejoras proporcionan modelos de intersecciones más precisos y realistas con menos reelaboraciones manuales, lo que favorece un flujo de trabajo paramétrico continuo que unifica el diseño 3D y la documentación 2D para proyectos de infraestructura complejos.

Incluido en: #Ultimate

Modelado de túneles: precisión paramétrica

Solución de modelado personalizada y eficiente

El modelado tridimensional de túneles es una piedra angular de cualquier proyecto de infraestructura moderno, dada la complejidad, la escala y los riesgos asociados a la construcción subterránea. Un modelo de túnel en 3D permite a las partes interesadas y a los ingenieros planificar, visualizar y optimizar todos los aspectos del diseño del túnel, desde la alineación y la sección transversal hasta la construcción y el mantenimiento.

Existen varios tipos de túneles, desde estructuras a cielo abierto hasta túneles perforados, que difieren no solo en los métodos de construcción, sino también en la geometría. En particular, los túneles circulares requieren un flujo de trabajo de diseño especializado. Para abordar esta cuestión, ALLPLAN ofrece ahora un nuevo enfoque de modelado paramétrico que agiliza el flujo de trabajo desde el diseño hasta la construcción de proyectos de túneles. Integra eficazmente las reglas de diseño 2D a nivel de sección transversal, la alineación del túnel y la metodología de construcción. Especialmente en la definición de la sección transversal, con nuevas líneas paramétricas y límites automatizados, los usuarios ganan no solo en rendimiento, sino también en precisión.

Ver vídeo

Incluido en: #Civil

Estructura de edificios para proyectos de infraestructura

Gestión centralizada de proyectos para una entrega openBIM más rápida, precisa y totalmente coordinada

La estructura de edificios de ALLPLAN ahora se extiende más allá de los edificios para dar soporte completo a proyectos de infraestructura, organizando todos los modelos, planos y documentación en una estructura intuitiva. Este enfoque centralizado mantiene a su equipo alineado, garantiza actualizaciones automáticas en todos los planos, reduce los errores y acelera la entrega. Con una colaboración fluida e información siempre precisa, aumenta la productividad, minimiza los riesgos y ofrece un mayor valor a los clientes, sentando una base sólida para flujos de trabajo openBIM avanzados.

 Prueba Gratuita

Incluido en: #Ultimate

Transferencia de modelos a BIMPLUS

Cargas instantáneas para flujos de trabajo coordinados y multidisciplinares en la nube

ALLPLAN Civil ahora permite la carga directa de modelos geométricos 3D a la nube de ALLPLAN, lo que permite a los equipos de infraestructura fusionar datos de carreteras, ferrocarriles, puentes, túneles, terrenos y mucho más en un entorno coordinado. Con las herramientas openBIM de Bimplus para la revisión, la gestión de incidencias, el control de revisiones y la visualización, todas las partes interesadas trabajan a partir de una única fuente de información, lo que agiliza la comunicación, reduce los errores y acelera todas las fases del proyecto. La integración permite un intercambio fluido de datos con soluciones de Nemetschek como Nevaris, lo que aumenta la productividad y la colaboración en proyectos de cualquier escala.

Ver vídeo

Incluido en: #Civil

Gestión de capas 3D

Organice, controle y edite modelos 3D complejos con la máxima precisión y eficiencia

ALLPLAN Civil 2025 introduce una gestión avanzada de capas para modelos 3D, lo que proporciona a los profesionales de las infraestructuras una excelente organización, visibilidad y productividad. Ahora los usuarios pueden asignar elementos del modelo (puentes, carreteras, túneles, terreno y mucho más) a capas específicas para separar claramente las disciplinas, fases o sistemas. Las capas se pueden mostrar, ocultar o aislar para una edición específica, lo que reduce los errores y agiliza el diseño. Los ajustes de propiedades globales garantizan la coherencia visual, mientras que los equipos multidisciplinares pueden trabajar en paralelo con menos conflictos. Esta potente capacidad establece un nuevo estándar de eficiencia y precisión en proyectos civiles complejos.

Incluido en: #Ultimate

Avances en el modelado paramétrico de secciones transversales

Herramientas mejoradas para un diseño civil más rápido, preciso y totalmente coordinado

En ALLPLAN Civil, las secciones paramétricas 2D son la columna vertebral de los modelos inteligentes, paramétricos y ricos en datos, lo que garantiza que todos los resultados sean coherentes y estén actualizados. La última versión mejora la flexibilidad y la eficiencia en la creación y modificación de componentes civiles complejos, con herramientas mejoradas que actualizan automáticamente todo el modelo cuando se realizan cambios. Estas mejoras aceleran el modelado, aumentan la precisión y reducen el trabajo repetitivo, lo que agiliza la transición del diseño a la construcción.

Incluido en: #Civil

FEM: elementos de volumen - Vista previa técnica

Análisis ampliado con elementos de volumen 3D para una mayor precisión y flexibilidad

El análisis estructural integrado de ALLPLAN Civil va ahora más allá de los modelos de vigas y emparrillado con una nueva solución FEM que utiliza elementos de volumen. Esta vista previa técnica permite simular geometrías complejas, efectos locales y distribuciones de tensiones detalladas, lo que permite tener en cuenta la rigidez de los elementos de la subestructura, como estribos, pilares y cimientos, dentro de los modelos globales. Gracias a una simulación más precisa de la interacción entre la superestructura y la subestructura, ofrece una mayor precisión y flexibilidad de modelado, allanando el camino para un análisis más avanzado en futuras versiones.

Ver vídeo

Incluido en: #Civil

Ampliación del flujo de trabajo de puentes con vigas prefabricadas

Mayor seguridad, precisión y automatización en el diseño paramétrico de puentes con vigas

La solución para puentes con vigas prefabricadas de ALLPLAN ofrece un flujo de trabajo altamente automatizado y basado en BIM que combina el modelado paramétrico, el análisis estructural avanzado y el detallado conforme a la normativa (EN, AASHTO LRFD 9) para optimizar el proceso de diseño y construcción hasta en un 70 %. Aprovechando los elementos paramétricos de las vigas, las plantillas modulares en 3D y la colaboración BIM sin fisuras, los ingenieros pueden definir rápidamente ejes, secciones transversales y colocar componentes con ajustes flexibles basados en parámetros. Las últimas mejoras añaden la evaluación de la estabilidad lateral de las vigas pretensadas durante el almacenamiento y el transporte, la generación automática mejorada de emparrillados para el diseño de refuerzos transversales y una sólida comprobación de la normativa, lo que garantiza una mayor seguridad, precisión y eficiencia en los proyectos modernos de puentes de vigas prefabricadas.

Incluido en: #Ultimate

Mejoras en los cimientos

Gestión más inteligente para modelos de construcción complejos

La gestión de modelos de construcción complejos es esencial en todas las fases del proyecto, desde la planificación hasta la entrega. Elementos clave como los modelos de excavación y los muros de contención son fundamentales para obtener resultados precisos y fiables. A medida que los proyectos crecen, los flujos de trabajo manuales pueden ralentizar el progreso y aumentar el riesgo de errores.

ALLPLAN 2026 introduce mejoras significativas en estos procesos básicos. La gestión mejorada de operadores permite a los equipos activar o desactivar de manera eficiente los operadores de excavación, visualizar los volúmenes de los operadores en la paleta y mantener el control durante todo el modelado. El flujo de trabajo mejorado de los muros de tablestacas agiliza la definición de las esquinas, lo que proporciona a los usuarios una mayor precisión con geometrías complejas. Además, las mejoras en el rendimiento de las vistas previas de los muros de contención hacen que el modelado sea más rápido e intuitivo.

Estas mejoras simplifican la gestión de modelos de construcción complejos, reducen los errores y aceleran la entrega de los proyectos, lo que ayuda a su equipo a lograr resultados superiores incluso en proyectos exigentes.

Ver vídeo

Incluido en: #Professional

Dimensionamiento basado en reglas

Aplique dimensiones basadas en reglas para acelerar la producción de planos

 ¿Cansado de perder horas dimensionando manualmente cada vista? ALLPLAN 2026 ahora automatiza las dimensiones basándose en los estándares de producción, de modo que cada elemento prefabricado obtiene exactamente las dimensiones necesarias, de forma instantánea y coherente. El dimensionamiento basado en reglas permite a los usuarios crear dimensiones personalizadas en vistas o secciones específicas para adaptarse a sus necesidades de producción. Los planificadores también pueden definir reglas para cualquier objeto 3D con datos macro en cualquier vista o sección. Esta flexibilidad permite a los usuarios optimizar los flujos de trabajo y garantizar que el dimensionamiento se adapte a las necesidades exactas de su proceso de fabricación.

Ver vídeo

Incluido en: #Professional

Dimensionamiento automatizado para vistas locales

Mantenga una claridad y estabilidad perfectas para las vistas locales

 Una representación precisa, la coherencia a pesar de las modificaciones y las capacidades de referencia automáticas y controladas por el usuario son esenciales para garantizar la claridad y la precisión en la documentación y la visualización. Estas funcionalidades reducen los errores al tiempo que mantienen la flexibilidad y el control. Las vistas locales en ALLPLAN permanecen ancladas a sus elementos, incluso cuando el modelo cambia, por lo que sus planos de taller siguen siendo precisos, alineados y nítidos, independientemente del número de ediciones o divisiones con las que esté trabajando.

Ver vídeo

Incluido en: #Professional

Nueva actualización de la paleta de conexiones

Una herramienta optimizada y lista para la producción que permite flujos de trabajo de prefabricados más rápidos y precisos

La paleta de conexiones actualizada en ALLPLAN 2026 optimiza la producción de prefabricados al integrarse completamente con el marco de propiedades de ALLPLAN, lo que ofrece un rendimiento más rápido y una experiencia de usuario coherente en todos los componentes prefabricados. Su desacoplamiento de los elementos de pared elimina la navegación innecesaria, lo que facilita el acceso y la modificación de los ajustes de conexión.

Ahora, como herramienta independiente, la paleta de conexiones permite a los usuarios crear, modificar y alinear de forma eficiente las juntas entre diferentes tipos de muros, como muros dobles y sólidos. La modificación directa de objetos permite a los usuarios ajustar las conexiones directamente en el modelo, lo que permite cambios más rápidos y precisos con retroalimentación visual inmediata. El sistema también admite ajustes automáticos de la altura de los muros e incorpora a la perfección detalles de producción como el desmoldeo y los bucles de conexión, optimizando el proceso para las necesidades de fabricación.

Prueba Gratuita

Incluido en: #Precast

Solución común para losas de filigrana

Automatice los diseños de losas optimizados para la producción

ALLPLAN ahora coloca y actualiza automáticamente los accesorios en las losas de filigrana, por lo que no es necesario volver a realizar el trabajo de diseño cada vez que cambia el diseño. La planificación de la producción ahora es mucho más rápida y fácil. 

Incluido en: #Precast

Armadura en oculto

Entregue planos de armaduras con total claridad

ALLPLAN 2026 introduce una funcionalidad automatizada que permite a los planificadores desactivar completamente las categorías de refuerzo ocultas durante la creación del plano.

Ahora, los ingenieros y arquitectos pueden distinguir claramente entre el refuerzo expuesto y el incorporado en los planos, lo que facilita la comprensión por parte de los equipos de trabajo, la aprobación por parte de los inspectores y evita a su equipo costosas reparaciones sobre el terreno.Esta innovación separa eficazmente las barras de refuerzo salientes del refuerzo empotrado en los elementos estructurales, lo que permite una visualización más clara.

Incluido en: #Precast

Cálculo de cantidades personalizable

Entregue cálculos de materiales precisos al instante

Exporte listas de materiales con los datos exactos que necesita, en el formato que requiere su ERP o su cliente. Personalice sus reglas una vez y obtenga cantidades coherentes y fiables en cada proyecto, sin más entradas duplicadas ni soluciones provisionales.

Ver vídeo

Incluido en: #Professional

Numeración de marcas

Asigne, valide y marque por lotes números al instante

Identifique rápidamente qué elementos coinciden en geometría, refuerzo o accesorios con un sistema unificado. Esta precisión le ayuda a agrupar por lotes de manera eficiente, reducir el desperdicio de encofrados y optimizar todo su programa de producción de prefabricados.

Ver vídeo


Y más: Nuevas funciones para...

Modelado y gestión de la información, Interoperabilidad y flujos de trabajo colaborativos

Ver funciones

ALLPLAN Cloud & Características y mejoras generales para todos
 

Ver funciones

Mejoras adicionales

Los diseñadores necesitan una herramienta de creación que permita un cálculo eficiente y preciso de las cantidades y una integración perfecta con sus soluciones preferidas. El Smart Catalog Editor de ALLPLAN proporciona una plataforma fácil de usar, integrada y aplicable a nivel mundial para gestionar bases de datos de materiales e información. ALLPLAN 2026 mejora la facilidad de uso y la usabilidad del Smart Catalog, lo que facilita la búsqueda y selección de los materiales adecuados. Las nuevas funciones, como la búsqueda iterativa y las secciones de catálogo expandibles o plegables, aumentan significativamente la eficiencia al navegar por las bases de datos de materiales.

Modelado preciso para cada forma y unidad: ALLPLAN 2026 aporta una mayor precisión al detallado de armaduras para estructuras circulares y espirales complejas. Con las capacidades actualizadas de armaduras circulares, todos los valores de los parámetros, incluidos el radio y el diámetro de la barra, se guardan y mantienen con exactitud. Esto es especialmente importante cuando se trabaja con unidades imperiales, ya que garantiza que incluso las dimensiones fraccionarias en pulgadas sigan siendo totalmente editables y coherentes en cada modificación. El resultado: detalles más fiables y confianza desde el diseño hasta la fabricación. 

El trabajo en equipo es ahora más fluido en ALLPLAN. Con las ACTUALIZACIONES AUTOMÁTICAS DE ARMADURAS, los cambios en los objetos 3D ajustan instantáneamente las armaduras vinculadas, sin necesidad de cambiar de modelo ni realizar actualizaciones manuales. Disfrute de una coordinación más rápida y sin errores y de flujos de trabajo fluidos, todo ello en ALLPLAN.

ALLPLAN 2026 es más rápido en todos los aspectos, acelerando todo, desde la carga de modelos hasta las actualizaciones de planos. Eso significa menos tiempo de espera y más tiempo para detallar, coordinar y entregar los planos. 

Provisión para huecos: las aberturas en paredes de ALLPLAN 2026 ofrecen mejoras significativas en el rendimiento, lo que permite a los diseñadores crear huecos de forma eficiente y automática incluso en los proyectos más complejos. Estas mejoras agilizan los procesos de diseño y facilitan un modelado BIM más fluido y productivo.

Las mejoras en el sistema de techo de ALLPLAN 2026 hacen que los planos de techo sean más claros y eficientes. Asigne diferentes caras 2D a cada elemento del techo para facilitar la distinción y disfrute de vistas de sección más claras con ajustes de formato específicos. El sistema de techo ahora puede adaptar su forma cuando se modifican los contornos de la habitación, utilizando el botón de actualización, lo que agiliza los flujos de trabajo y reduce los errores.

ALLPLAN 2026 mejora la colaboración openBIM con importantes mejoras en la importación IFC4. La compatibilidad ampliada con losas multicapa y la actualización del cumplimiento de los estándares IFC4 garantizan una mayor calidad y fiabilidad de los datos importados. Estas mejoras refuerzan la interoperabilidad con otras plataformas BIM, lo que proporciona a los equipos de AEC una mayor confianza y flexibilidad al trabajar en entornos de software mixto. El resultado es un intercambio de datos más fluido, modelos más precisos y un liderazgo reforzado de ALLPLAN en los flujos de trabajo openBIM.

ALLPLAN 2026 cuenta con un menú contextual mejorado, que facilita el acceso y el uso de las herramientas esenciales. Esta interfaz optimizada ayuda a los usuarios a encontrar rápidamente los comandos, reduce el tiempo de aprendizaje para los nuevos usuarios y aumenta la productividad general de cada proyecto.

El conector de contenido de ALLPLAN 2026 ahora permite la integración perfecta de nuevos proveedores de terceros mediante el innovador paquete ALLEP. Además, para el flujo de trabajo de 3D Warehouse, no es necesario conservar un archivo fuente SKP: una vez generado un objeto PythonPart, el contenido se añade directamente. Estas mejoras simplifican la ampliación de su biblioteca de contenidos, aumentan la flexibilidad para los socios y aceleran los flujos de trabajo de los proyectos para todos los usuarios.

ALLPLAN 2026 presenta una paleta PythonPart completamente rediseñada con un rendimiento significativamente mejorado y una serie de nuevas funciones. Disfrute de una mayor flexibilidad con expansores anidados para una mejor organización, cambio de tamaño de imágenes para una visualización más clara y compatibilidad total con el modo oscuro para una experiencia de usuario moderna y cómoda. Estas mejoras agilizan y facilitan la gestión de PythonParts, lo que aumenta la productividad y ofrece un flujo de trabajo más intuitivo para cada proyecto.

La nueva versión añade geometría de ejes circulares y ejes horizontales paralelos, lo que abre nuevas posibilidades para el diseño paramétrico de infraestructuras. Ahora los usuarios pueden crear alineaciones cerradas para el modelado paramétrico real de rotondas y generar ejes paralelos con desplazamientos definidos por el usuario, compuestos por rectas, arcos, clotoides y elementos de transición para una consistencia geométrica total. Todos los ajustes se gestionan en el Administrador de ejes, lo que permite crear y controlar los ejes de forma eficiente. Este flujo de trabajo paramétrico unificado sienta las bases para el diseño avanzado de carreteras, vías férreas y rotondas multieje.

Colocación paramétrica y actualizaciones automáticas para un diseño más rápido, preciso y coherente: La colocación paramétrica de objetos en ALLPLAN permite realizar ajustes dinámicos e intuitivos en los elementos del proyecto directamente en el modelo. Las PythonParts creadas mediante Visual Scripting se pueden insertar y gestionar sin necesidad de codificación manual, y todos los objetos se actualizan automáticamente a medida que cambian los parámetros. Este enfoque combina flexibilidad con estandarización, admite plantillas sofisticadas y reduce las tareas repetitivas, lo que aumenta la precisión, la coherencia y la productividad en proyectos de cualquier escala.

Integración perfecta de las normas nacionales para un diseño de puentes más rápido y totalmente conforme: La última actualización del módulo de diseño basado en códigos de ALLPLAN Bridge integra los anexos nacionales holandeses y belgas más recientes, incorporando todos los estados límite, valores, métodos de cálculo y procedimientos de verificación específicos de cada país directamente en el flujo de trabajo. Al automatizar las comprobaciones de conformidad y hacer referencia a las disposiciones de los anexos en los informes de cálculo, la solución elimina la interpretación manual, reduce el riesgo y acelera la validación, lo que en última instancia acelera el tiempo de comercialización y mejora la rentabilidad mediante flujos de trabajo más eficientes, conformes y escalables.

Compatibilidad total con la norma IRC para un diseño de puentes preciso y conforme en la India y otros países: El análisis estructural integrado de ALLPLAN Civil permite un análisis global de puentes preciso y conforme con la normativa, teniendo en cuenta efectos dependientes del tiempo como la fluencia, la contracción y la relajación de la pretensión. La última actualización añade compatibilidad total con las normas del Indian Roads Congress (IRC), lo que permite a los ingenieros modelar geometrías complejas y escenarios de construcción por etapas en total conformidad con los requisitos del IRC. Con esta mejora, ALLPLAN ahora es compatible con una gama más amplia de proyectos internacionales, lo que permite a los ingenieros ejecutar análisis que cumplen con la normativa con confianza y coherencia en diversos entornos normativos.

Reúna sus dibujos en un único entorno compartido diseñado para facilitar la colaboración. Los flujos de trabajo de documentación mejorados permiten a los usuarios enviar dibujos 2D desde ALLPLAN directamente a un espacio de proyecto centralizado, lo que mantiene a todos en sintonía y agiliza la coordinación. Los equipos se benefician de una toma de decisiones más rápida, menos errores y una mayor productividad, lo que hace que la entrega de proyectos sea más fluida y eficiente que nunca.

Importación de IFC 4.3 y SketchUp 2024, además de exportación a GLB para flujos de trabajo de datos más fluidos. BIMPLUS ofrece ahora una mayor interoperabilidad con la compatibilidad con nuevas interfaces. Los usuarios pueden importar archivos IFC 4.3 y modelos SketchUp 2024, lo que garantiza la compatibilidad con los últimos estándares del sector. Además, las capacidades de exportación se han ampliado al formato GLB tanto en BIM Portal como en BIM Explorer, lo que permite un intercambio de datos y una visualización más fluidos entre plataformas.

ALLPLAN

DESIGN TO BUILD A BETTER TOMORROW
Flujos de trabajo más productivos, colaborativos y avanzados

PRUEBA ALLPLAN GRATIS

  • Trabajo en equipo AEC interdisciplinar en una única plataforma
  • Coordinación superior de materiales y métodos de construcción
  • Flujos de trabajo BIM avanzados y colaboración en tiempo real

Prueba la versión completa de ALLPLAN durante 14 días de forma gratuita y sin compromiso. Simplemente descarga el software y experimenta todas las ventajas por ti mismo.

Descargar