ALLPLAN 2026

DESIGN TO BUILD A BETTER TOMORROW

Nové funkce v ALLPLAN 2026 pro modelování informací, správu, Interoperabilita a spolupráce

Osobní demo zkušební verze zdarma

Modelování a správa informací

Zahrnuto v: #Basic

Podpora georeferencování

Přesné georeferencování pomocí georeferenčních bodů.

Přesné georeferencování je v BIM klíčové pro správné umístění projektu, zarovnání podle severu a přesné polohové údaje. ALLPLAN 2026 přináší nové možnosti nastavení georeferencování, včetně měřicích bodů (pro souřadnice vztažené k zemi) a základních bodů (pro místní počátek a posun projektu), které zajišťují bezproblémovou spolupráci s formáty jako IFC a eliminují potíže s rotací modelu při výměně dat. Tyto body jsou vizuálně zobrazeny pro snadné umístění a úpravy. Samostatné nastavení severu navíc umožňuje uživatelům přesně umístit projekty do reálných souřadnic, zlepšit mezioborovou spolupráci a zajistit správné zarovnání všech BIM prvků.

Podívejte se na video

Zahrnuto v: #Concept

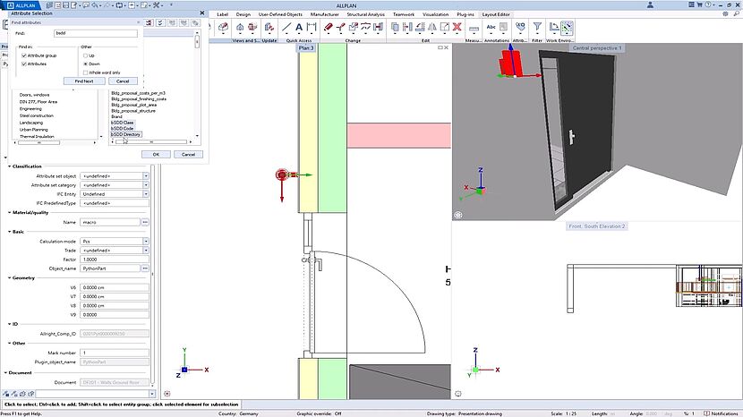
Importujte buildingSMART Data Dictionary (bSDD) do ALLPLAN

Hladká integrace BIM se standardizovanými daty.

ALLPLAN 2026 zjednodušuje BIM pracovní postupy díky integrovanému přístupu k bSDD s více než 300 odbornými slovníky, včetně standardů udržitelnosti a národních předpisů od buildingSMART. Specializované sady atributů lze rychle importovat a aplikovat na objekty, což urychluje zahájení projektu, zlepšuje rozhodování a zajišťuje plynulou výměnu dat openBIM – bez nutnosti ručního nastavování. Stavte chytřeji s dokumentací připravenou k auditu a s vysoce kvalitními daty.

Podívejte se na video

Zahrnuto v: #Professional

Import atributů na základě IDS

Automatizovaná shoda s BIM a zjednodušená integrace dat s pravidly IDS.

V procesech BIM plánování je klíčové integrovat informace snadno a správně. IDS (Information Delivery Specification) od buildingSMART je standardizovaný formát, který jasně definuje a automatizuje informační požadavky pro projekty BIM a zajišťuje, že modely obsahují všechna data potřebná k dodržení předpisů.

ALLPLAN 2026 nyní poskytuje rozšířenou podporu souborů IDS – automaticky kontroluje a upravuje atributy modelu tak, aby odpovídaly požadavkům BIM. To umožňuje strávit méně času opravami dat a více času návrhem, koordinací a dodávkou modelů v souladu s předpisy.

Podívejte se na video

Zahrnuto v: #Concept

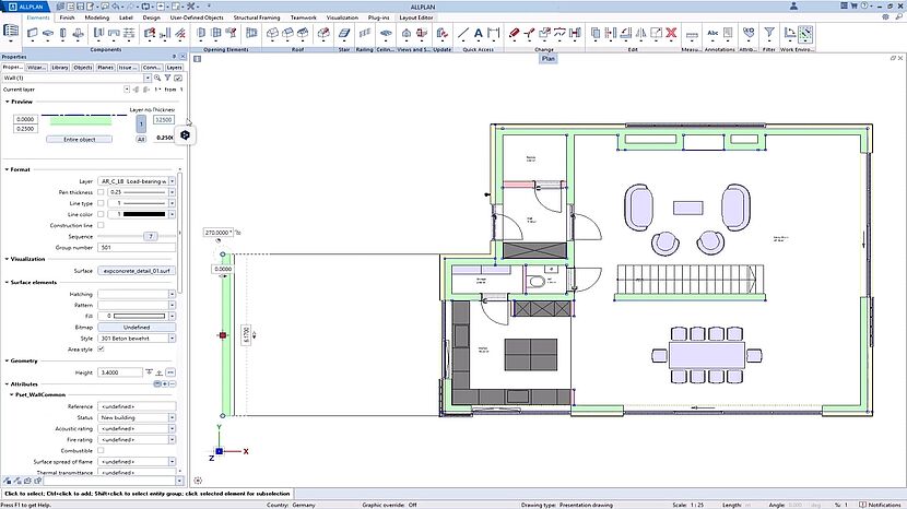
Vylepšená Informační paleta

Snadná organizace a kontrola pro snadnější a rychlejší řízení projektů.

ALLPLAN 2026 přináší zcela přepracovanou Inormační paletu . Nová verze nabízí pokročilé funkce, včetně flexibilního seskupování, automatických součtů, ověřování IDS, integrace katalogů, vylepšené navigace, třídění a filtrování a přepracovaného uživatelského rozhraní pro intuitivnější práci a vyšší výkon. Tyto nástroje umožňují rychle organizovat, vyhledávat a aktualizovat informace, snižují čas strávený hledáním a zvyšují produktivitu. Výsledkem je spolehlivější plánování, rychlejší dodání projektu a více času na kreativní činnosti.


Interoperabilita a spolupráce

Zahrnuto v: #Concept

Vylepšený správce Xrefů, pokročilé IFC XRefy a reference z Cloudu

Větší flexibilita, integrace cloudu a zefektivněná spolupráce

ALLPLAN 2026 přináší výrazně vylepšeného správce XRefů, který nabízí intuitivnější a efektivnější práci s externími referencemi, zejména se soubory IFC. Nový správce zobrazuje integrované 3D náhledy odkazovaných souborů přímo v rozhraní a vizuální ikony ukazují, zda je XRef uložen ve složce projektu ALLPLAN nebo na externím místě. To týmům umožňuje rychle vyhledat a ověřit zdroje, což je obzvlášť užitečné při práci se zálhami projektů obsahujícími XRef. Pokročilé nástroje pro správu souborů, jako nahrazení, filtrování a výběr souborů, poskytují větší kontrolu a efektivitu při práci s referencemi.

Významnou novinkou je zavedení cloudových referencí, nového typu IFC XRefu, který umožňuje přímé vkládání souborů IFC z BIMPLUS, cloudové platformy ALLPLANu pro spolupráci. Tento přístup odstraňuje potřebu lokálního stahování souborů, snižuje nároky na úložiště a zajišťuje, že týmy vždy pracují s aktuálními projektovými daty. Když jsou zdrojové soubory IFC uloženy v cloudu, oprávnění uživatelé je mohou přímo prohlížet v ALLPLANu, plně využívat možnosti IFC XRefu v modelovém prostoru a přistupovat ke všem nástrojům pro správu informací v XRef Manageru. Tato hladká integrace rovněž zlepšuje sdílení informací v rámci společného datového prostředí.

Další vylepšení zahrnují automatické zachování relativních cest k souborům, které předchází problémům s ukládáním a zajišťuje konzistentní odkazy napříč systémy. Externí XRef lze exportovat a importovat spolu se zdrojovými soubory, zatímco XRef uložené v projektových složkách lze zabalit do formátů .ZIP nebo .APN pro snadný přenos. Tato vylepšení poskytují architektonickým a inženýrským týmům jasný a jednotný přehled všech odkazů projektu, zjednodušují správu dat a podporují spolupráci v lokálních i cloudových prostředích, což umožňuje rychlejší a spolehlivější dodání projektu.

Podívejte se na video

Zahrnuto v: #Concept

Geopackage DataExchange

Snadná integrace GIS dat v souladu se standardy pro urbanismus

Geoprostorová data jsou nezbytná pro architekty, inženýry a urbanisty, protože umožňují kvalifikovanější rozhodování. ALLPLAN nabízí specializované moduly pro urbanistické plánování a krajinářství, přičemž podpora XPlan byla dosud dostupná pouze v Německu. Díky integraci GeoPackage nyní ALLPLAN 2026 umožňuje využití GIS dat v celé EU i mimo ni. GeoPackage umožňuje přímý import a export geoprostorových dat – včetně geometrie, atributů a souborů .xls – a flexibilně se přizpůsobuje národním standardům, což architektům, projektantům a úřadům poskytuje rychlý přístup k přesným informacím o lokalitě pro lepší rozhodování o územním plánování, infrastruktuře a dopadu na životní prostředí.

Podívejte se na video

Zahrnuto v: #Basic

Integrace Preoptima

Včasné vyhodnocení uhlíkové stopy pro informovanější a udržitelnější rozhodnutí o návrhu

Pro udržitelný návrh musí architekti a inženýři posoudit dopady uhlíku již v rané fázi projektu. ALLPLAN 2026 podporuje udržitelnost od začátku díky plynulému pracovnímu postupu s Preoptima CONCEPT. Uživatelé mohou exportovat koncepční hromadné modely z ALLPLANu do Preoptima CONCEPT pro včasné posouzení a ověření uhlíkové stopy – bez potřeby podrobného BIM modelu.

Preoptima CONCEPT umožňuje nejen výpočty uhlíkové stopy, ale také hodnocení provozní uhlíkové stopy, uhlíkové stopy za celý životní cyklus (WLC) a podporuje optioneering – díky čemuž mohou uživatelé porovnávat různé varianty návrhu z hlediska optimalizace uhlíkové stopy. To umožňuje projektantům porozumět celkovému dopadu projektu na životní prostředí již od jeho nejranějších fází.

Díky využití několika sad pravidel Preoptima mohou uživatelé v ALLPLANu provádět automatizované kontroly geometrie a zároveň podporovat dodržování předpisů, aniž by byla omezena flexibilita návrhu. Tento pracovní postup umožňuje architektům činit od samého začátku informovaná a komplexní rozhodnutí , která vyvažují ekonomické a environmentální aspekty a snižují riziko nákladných změn v pozdějších fázích projektu.

Díky těmto integrovaným funkcím umožňují ALLPLAN 2026 a Preoptima CONCEPT projektovým týmům činit optimální udržitelné rozhodnutí – a od prvního dne vytvářet chytřejší a ekologičtější budovy.

Podívejte se na video


ALLPLAN

DESIGN TO BUILD A BETTER TOMORROW
Produktivnější, otevřenější a pokročilejší pracovní postupy

ALLPLAN VYZKOUŠEJTE ZDARMA

  • Mezioborová týmová práce v AEC na jediné platformě
  • Vynikající koordinace materiálů a stavebních metod
  • Pokročilé pracovní BIM postupy a spolupráce v reálném čase

Vyzkoušejte si plnou verzi ALLPLAN na 14 dní zdarma a nezávazně. Jednoduše si software stáhněte a vyzkoušejte si všechny jeho výhody na vlastní kůži.

Stáhnout zdarma zkušební verzi